etch have been appointed by the Chemistry Department of the University of Oxford to complete the detailed design and construction works for the complex laboratory facility located with the Chemistry Research Laboratory at the University of Oxford.
Their instruments include specialised spectrometers equipped to operate across a wide temperature range with capabilities for advanced techniques. The group is led by Professors Christiane Timmel and Arzhang Ardavan and has facilities with light sources for photo excitation, including a tunable OPO covering UV, visible, and NIR regions.
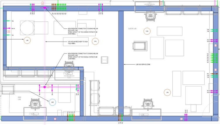
The Chemistry Research Laboratory, where the CAESR project is located within the basement, is a renowned building in the University of Oxford. It houses a combination of laboratories, including ISO 7 cleanrooms, workshops, and containment laboratories, supporting high-tech and precise scientific research activities. This unique setting accommodates the specialised equipment and experimental set-ups required for CAESR’s cutting-edge electron spin resonance research.
The CAESR facility’s capabilities, alongside the Chemistry building’s infrastructure, enable a high standard of scientific exploration, particularly in electron spin resonance spectroscopy, contributing significantly to Oxford’s reputation in chemical and physical sciences research.



